Ministry Projects

Every project specifically created to empower Thai pastors to plant Thai churches that reach Thai people...
...with the gospel of Jesus Christ.

New Self Tech

Help us build a business that will fund church planting and provide jobs, skills, and entrepreneuaral opportunities for Thai church leaders.

Help Us Build a Business

Thai Foundation

Help us build a non-profit foundation that will let us provide visas for our team, own ministry property, and open ministry bank accounts.

Help Us Build a Foundation

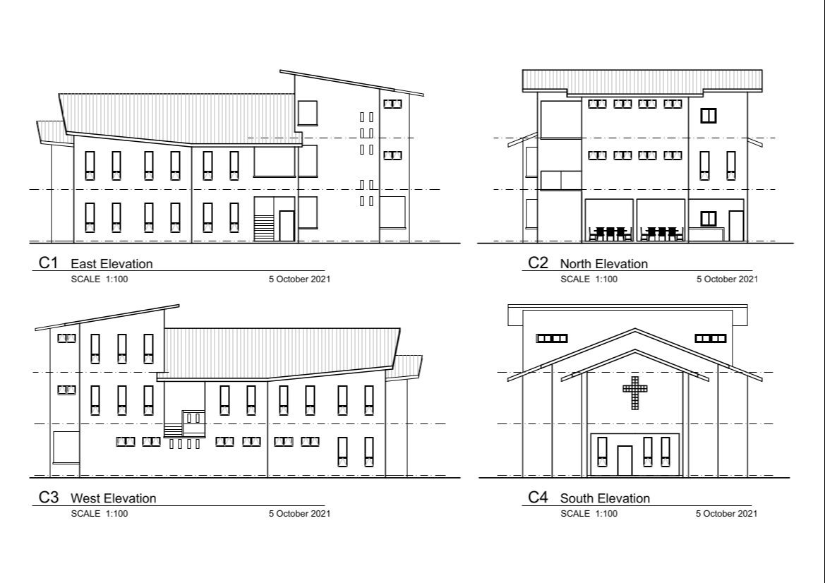
Cool Shade Building

Help us build a church building for Cool Shade of Life Church that will serve as a place of worship, ministry training, and community connection.

Help Us Build a Church Building